Somogy megye, Balatonboglár
 

Ingatlan adatai
Irányár: 105 400 000 Ft
Típus: lakás (újépítésű)
Kategória: eladó
Alapterület: 79 m2
Fűtés: -
Állapota: új
Szobák száma: 3
Építés éve: 2023
Szintek száma: -
Részletes leírás
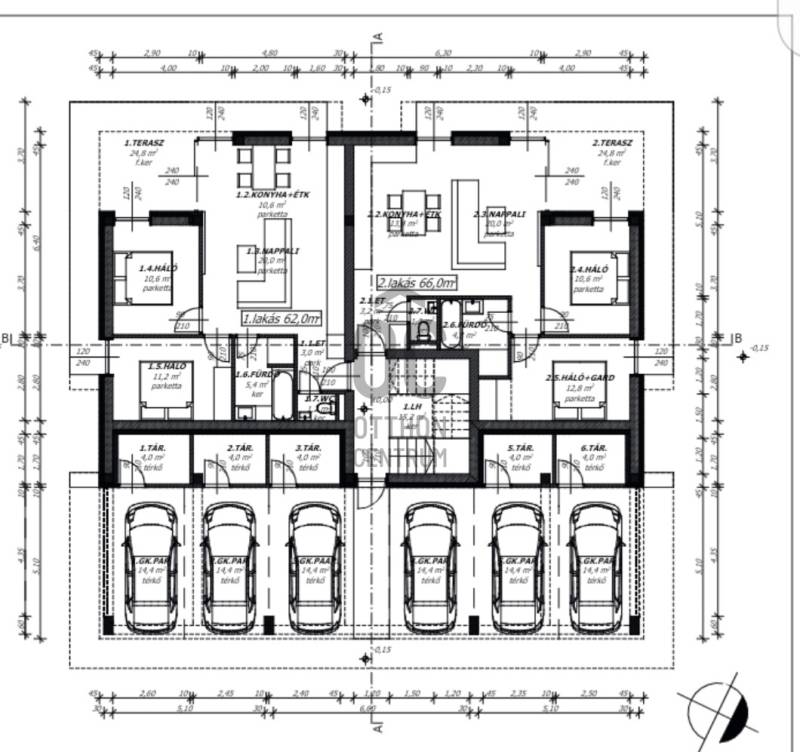
Irodánk eladásra kínál Balatonboglár közkedvelt lakóövezetében a PLATÁN VILLAPARKBAN egy 66 m2-es 3 szobás lakást 14.8 m2.-es erkéllyel!Kitűnő elhelyezkedésének köszönhetően ön egy nyugodt családias utcában mégis egy karnyújtásnyira a Balatonboglári szabad strand, központ, üzletek, éttermek stb.-től töltheti mindennapjait.Kiemelt megbízás,csak nálunk!Hogy miért válassza a Platán Villaparkot otthonának vagy álmai nyaralójának?--70m2 kiert,25m2 tersz- átlagon felüli hőszigetelés, nagyon alacsony rezsiárak.- hőszivattyús mennyezet-padló-hűtés-fűtés.- zárt lépcsőház- zárt közös udvar játszótérrel és grillezővel és gyönyörű, árnyas platánfával- földszinti lakások esetében saját kert- telken belüli fedett vagy nyitott parkolók (külön megvásárolható)- saját földszinti tároló (külön megvásárolható)- szúnyogháló- elektromos mozgatású redőny- elektromos mozgatású kapuk- TV, internet, biztonságtechnika előkészítés- tágas jól kihasználható terasz minden lakáshoz (14,8m2)- világos belső terekAz ingatlan kiváló minőségű anyagok felhasználásával épül, ezzel is megteremtve a kényelmet új tulajdonosaik számára.A HIRDETÉSBEN SZEREPLŐ ÁRON A LAKÁSOKAT, EMELT SZINTŰ SZERKEZETKÉSZ ÁLLAPOTBAN ADJUK ÁT ÖNÖKNEK
További adatok
Telekterület: -
Kert mérete: -
Erkély mérete: 25 m2
Felszereltség: -
Parkolás: -
Kilátás: kertre néző
Egyéb extrák:  
-
Hirdető adatai
Hirdető neve: Otthon Centrum
Hirdető telefonszáma: +36 70 461 9086