Zala megye, Zalaegerszeg
 

Ingatlan adatai
Irányár: 76 500 000 Ft
Típus: lakás (újépítésű)
Kategória: eladó
Alapterület: 85 m2
Fűtés: -
Állapota: új
Szobák száma: 3
Építés éve: 2023
Szintek száma: -
Részletes leírás
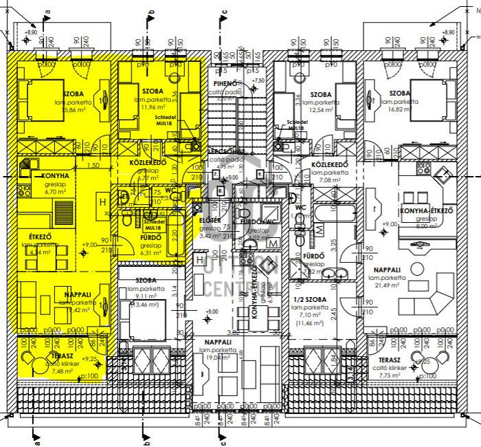
Egyedüli lehetőség Zalaegerszegen!Új lakást szeretne, saját ízlésének megfelelően Zalaegerszegen?Íme, egy nagyszerű ajánlat Zalaegerszeg belvárosában, 85.37 nm -es lakás, 780 000Ft/nm-es áron!!!A 9 lakásos társasházban 44-87 nm-es, 3 szobás lakások kerülnek kialakításra ,különálló garázsokban vagy zárt parkolóhelyeken biztosított a gépkocsik tárolása és védelme.A tervezés során fontos szempont a beépített anyagok magas minősége , a költséghatékony fenntartás és az épületek értékállósága. A ház fűtését , illetve meleg víz ellátását , hőszivattyús rendszer biztosítja , lakásonkénti egyedi méréssel és szabályozással , padlófűtéssel.Az ingatlan az első emeleten helyezkedik el 88,22 m2 bruttó területű, ebből a 2 erkély mérete összesen 9,41 m2.2 hálószoba, nappali, konyha, étkező, fürdő, 2 WC, előtér, közlekedő, terasz elrendezésű.A projekt főbb jellemzői:- belváros közeli , frekventált elhelyezkedés (Petőfi utca Ady - Mártírok közti részén)- igényes , belvároshoz méltó külső megjelenés- 9 prémium minőségű lakás funkcionálisan tervezett alaprajzokkal: 2 szobával, nappalival, erkélyekkel- napfényes , déli - nyugati tájolású lakások- fenntartható lakás , alacsony energiafelhasználás- impozáns épület, kevésbé forgalmas belvárosi részen- fürdő és WC külön helyiségben minden lakásban- 3 rétegű nyílászárók , redőny , szúnyogháló , klíma kérhető- Választható belső burkolatok , szaniterek , ajtók- belső , zárt , kisméretű , parkosított udvar- saját garázs vásárolható- Családi Otthonteremtési Kedvezmény + Hitel igényelhető!Az építkezés 70%-os készültségi szinten tart.Az épület műszaki átadása: 2024 év eleje.
További adatok
Telekterület: -
Kert mérete: -
Erkély mérete: 14 m2
Felszereltség: -
Parkolás: -
Kilátás: utcai
Egyéb extrák:  
-
Hirdető adatai
Hirdető neve: Otthon Centrum
Hirdető telefonszáma: +36 70 716 9556