Komárom-Esztergom megye, Dunaalmás
 

Ingatlan adatai
Irányár: 52 900 000 Ft
Típus: ház
Kategória: eladó
Alapterület: 109 m2
Fűtés: -
Állapota: új
Szobák száma: 5+2
Építés éve: 2025
Szintek száma: -
Részletes leírás
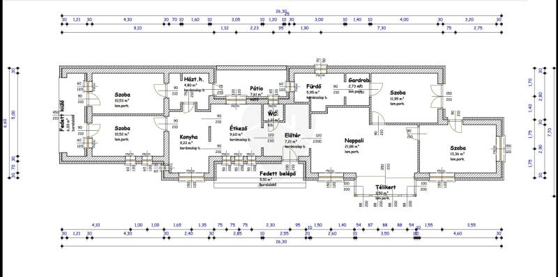
Fedezd fel álmaid otthonát Dunaalmás szívében, ahol a csendes környék és a modern életstílus találkozik!Ez az új, lakóingatlan tökéletes választás családosok számára, akik értékelik a tágas tereket és a természet közelségét.A Vöröskőalja úton található ingatlan 109 nm-es alapterületével és 900 nm-es telek méretével ideális helyet biztosít a családi élethez.A házban nappali + 4 szoba is kialakítható, de ez a lehetőség már az új tulajdonos elképzelésére van bízva.Az egyedi tervezésű otthon világos és barátságos, a nagy ablakoknak köszönhetően természetes fény áramlik be a terekbe, ami még otthonosabbá teszi a környezetet.A 15 nm-es terasz pedig ideális a reggeli kávézásokhoz vagy a nyári grillezésekhez.Az ingatlan állapota új építésű, a fűtés megújuló energiaforrással működik, ami nemcsak környezetbarát, hanem a rezsiköltségeket is kedvezően befolyásolja, de a fűtésrendszer is az új tulajdonos igénye alapján módosítható.A feltüntetett vételár az emelt szintű szerkezetkész árat és a telek árát tartalmazza, de igény esetén kulcsra kész befejezésre is van lehetőség!Az ingatlan elosztásának egyik lehetősége a feltüntetett alaprajzon részletesen megtalálható, a belső válaszfalak az új tulajdonos igényei szerint módosítható.Dunaalmás egy csendes, biztonságos település, ahol a környék ellátottsága kiváló, a közeli boltok, óvodák és iskolák mind könnyen elérhetők, így a család minden tagja megtalálja a számára legmegfelelőbb szolgáltatásokat.A közlekedés is kedvező, hiszen a város jól megközelíthető autóval, és a tömegközlekedési lehetőségek is rendelkezésre állnak, így a környező városok, például Esztergom vagy Komárom könnyedén elérhetők.Ez az ingatlan nemcsak egy új otthon, hanem egy életstílus is, amely a nyugalmat és a kényelmet helyezi előtérbe.Ne habozz, ha kérdéseid lennének, vagy szeretnéd megtekinteni ezt a kivételes lehetőséget, bátran keresd fel az elérhetőségeinket!Az ingatlanpiac folyamatosan változik, és ez a lehetőség nem tart örökké.Élj a lehetőséggel, és lépj be új otthonod ajtaján!További kérdés esetén állok rendelkezésére!Amennyiben megbízható építtetőt szeretne, referenciamunkákkal, minőségi anyagokkal és kivitelezéssel, hívjon bizalommal akár hétvégén is!Teljes körű ügyintézéssel:- Ügyvéd- Biztosítás- Hiteltanácsadás- Generálkivitelezés- Ingatlanértékesítés- Teljeskörű ingatlanfelújítás- CSOK, babaváró, áfa visszaigénylés - állunk rendelkezésére!
További adatok
Telekterület: 900 m2
Kert mérete: 900 m2
Erkély mérete: 15 m2
Felszereltség: -
Parkolás: -
Kilátás: udvari
Egyéb extrák:  
-
Hirdető adatai
Hirdető neve: B&B Ingatlan powered by RH tanácsadói
Hirdető telefonszáma: +36 30 651 4841