Győr-Moson-Sopron megye, Nagybajcs
 

Ingatlan adatai
Irányár: 84 000 000 Ft
Típus: ház
Kategória: eladó
Alapterület: 100 m2
Fűtés: gáz (cirko)
Állapota: új
Szobák száma: 4
Építés éve: 2025
Szintek száma: -
Részletes leírás
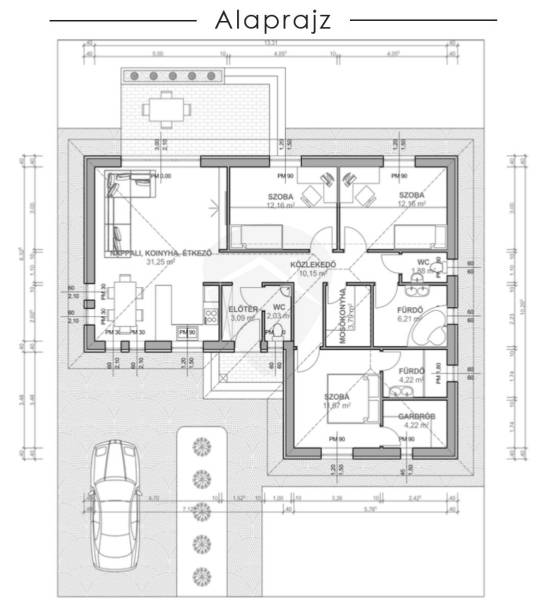
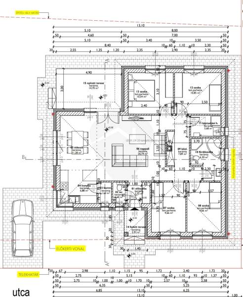
Győr közelében Nagybajcson, újonnan épülő, igényes kialakítású, tégla építésű családi ház leköthető.A nappali + három szobával(vagy akár több szobával) rendelkező ingatlan alapterülete nettó 100 m2, mely igény szerint módosítható.A praktikusan tervezett házban a szobákon kívül tágas és napfényes amerikai konyhás nappali, gardrób, kamra, szélfogó, közlekedő, fürdőszoba+wc, háztartási helyiség és egy külön mellékhelyiség is kialakításra kerül.Az élhető méretű telek összesen 1000 m2-es, mely 30%-ban beépíthető.A feltüntetett vételár az emelt szintű fűtés kész árat és a telek árát tartalmazza, de igény esetén kulcsra kész befejezésre is van lehetőség!Továbbá az ár tartalmazza a komplett tervezői díjat(gépészet, metszetek, statika, energetika, engedélyek), plusz egy inverteres(hűtő-fűtő) klímát!A jelenlegi árajánlatban az otthon melegéről gáz-cirkó kazán gondoskodik, padlófűtéses hőleadással, de a fűtésrendszer is az építtető igényei alapján módosítható!A részletes műszaki leírást és az Építőipari cég weboldalát kérésére e-mailben elküldöm.Más az elképzelése? Válassza ki Ön a saját elképzeléseinek megfelelő alaprajzot!Amennyiben teljesen egyedi tervezést szeretne, az is lehetséges!A képek látványtervek.Jól átgondolt tervezés, megfelelő szakmai tudás és háttér garantálja a MINŐSÉGI OTTHON megvalósítását!További kérdés esetén állok rendelkezésére!Amennyiben megbízható építtetőt szeretne, referenciamunkákkal, minőségi anyagokkal és kivitelezéssel, hívjon bizalommal akár hétvégén is!Teljes körű ügyintézéssel:- Ügyvéd- Biztosítás- Hiteltanácsadás- Generálkivitelezés- Ingatlanértékesítés- Teljeskörű ingatlanfelújítás- CSOK, babaváró, áfa visszaigénylés - állunk rendelkezésére!
További adatok
Telekterület: 1 000 m2
Kert mérete: 1 000 m2
Erkély mérete: -
Felszereltség: -
Parkolás: -
Kilátás: kertre néző
Egyéb extrák:  
-
Hirdető adatai
Hirdető neve: B&B Ingatlan powered by RH tanácsadói
Hirdető telefonszáma: +36 30 651 4841